深圳小产权房
首页
宝安
石岩
沙井
西乡
福永
松岗
固戍
光明区
公明
光明
龙华区
龙华
民治
大浪
观澜
龙岗
布吉
坂田
平湖
龙城
横岗
南联
坪地
坪山
深圳市区
南山
福田
罗湖
盐田
东莞
长安
大朗
大岭山
塘厦
厚街
虎门
凤岗
黄江
横沥
樟木头
常平
茶山
寮步
东坑
松山湖
企石
南城
东城
清溪
石排
惠州
惠城
大亚湾
仲恺
龙门
惠阳
博罗
淡水
新圩
惠东
巽寮湾
十里银滩
沥林
客服电话:13632603771
位置:
粤享房
>
东莞小产权房
>
横沥小产权房
> 东莞横沥村尾小产权房《锦江家园》永久性电梯洋房 户户大阳台 均价2900元
东莞横沥村尾小产权房《锦江家园》永久性电梯洋房 户户大阳台 均价2900元
价格:¥
2900元
楼盘名称:
锦江家园
楼盘类型:
东莞横沥小产权房
楼盘概况:
两房 三房
户型面积:
76-103-113平
交房标准:
毛坯
楼盘地址:
横沥振兴中路
销售电话:
13632603771(刘经理)
13538226807(祝经理)
在线咨询
项目介绍
2020-05-27
流量:1099
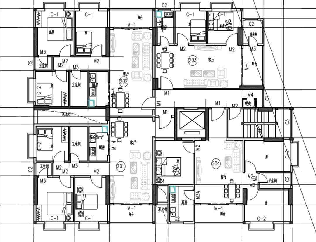
东莞横沥村尾小产权房《锦江家园》永久产权的电梯洋房
横沥性价比最高,小区化管理,完美配套
户型方正,商品房格局 ,每个房间够大,全带飘窗
户户大阳台,送阳台门
户型鉴赏:
两房两厅:76㎡
三房二厅:103~113㎡
均价:2900元/平
付款方式:一次性付款
分期付款:无条件分期,首付5成,分期3 年 ,低利息5厘。
项目优势:
大型菜市场步行3分钟 ,崇德学校步行5分钟。
横沥汽车站500米 ,横沥中学,二小5分钟。
主干道公交站2分钟 ,体育公园休闲公园3分钟。
大型工业园区4分钟,楼下三面停车场。
华润万家,碧桂园,肯德基,麦当劳,嘉荣商场,全部6分钟内到达。
在线留言
意向区域:
意向楼盘:
预算总价:
姓名:
电话:
热门推荐
深圳平湖16栋花园统建楼《鹿湖花园》集体大红本 精装交房 户户带阳台 地下停车场
龙岗豪宅《半山名著》12栋大型花园社区统建楼,可以落户,积分入学,70年产权
西乡西湾红树林公园《滨海时代广场》唯一带花园社区海景房 双地铁口物业
长安厦边《滨海明珠花园》3栋统建楼 通燃气湖景房 带地下停车场
大朗6栋大型统建楼《东方明珠》松山湖花园小区房 使用率90% 智能化物业管理 1 :1停车位
塘厦碧桂园天麓山旁《香蜜国际》5栋大型花园统建楼 带天燃气和停车场 分期8年
观澜新田三栋小产权房《名城世家》公园旁 观澜湖站 可落户 可申请公立学校
松山湖大朗华为旁《中心花园》5栋花园小区 自带商业和停车场
深圳石岩集体大红本大型统建楼《山水悦城》地铁口物业 南山后花园 带天燃气和地下停车场 超高绿化率
东莞大朗6栋大型村委花园统建楼《银领国际》带停车场和天燃气,村委过户发绿本
横沥小产权房
横沥贝冲6栋规模《星河花园》双地铁R3线地铁口 2880元/平任挑任选 免费停车场
单价:¥
2880元
横沥贝冲小产房《聚源公馆》带装修单价2980起 首付3成分8年 生活配套一应俱全
单价:¥
2980元起
东莞横沥贝冲[明创花园]小产权房统建楼,首付2万,分期20年
单价:¥
2980元
横沥石涌小产权房《恒和尚霖苑》交通便利配套齐全 专人管理 停车方便
单价:¥
2980元起
横沥双中心4栋《贝冲雅苑》封闭管理小区 交通便利配套齐全 东莞性价比最高 两房18.8万
单价:¥
2180元
横沥贝冲8栋封闭式花园《贝冲花园》交通便利配套齐全 3380元/平任挑任选
单价:¥
3380元
横沥田坑[田坑公馆]小产权房 综合市场旁 交通便利 周边配套齐全 免费停车
单价:¥
3280元
商品房的地段享受宁静生活 横沥新城区[新城华府]小产权房 河边跑道休闲娱乐设备齐全
单价:¥
3880元起
横沥三江小产权房《荷塘悦舍》70年产权 户型方正采光无敌 拎包入住
单价:¥
4000元
横沥村尾最新精装小产权房《村尾雅苑》商品房围绕 马路边第一排,车位无忧
单价:¥
按套卖
横沥水边2栋《东部之星》综合市场0距离小产权房 首付10万起 拥有温暖的家
单价:¥
4580元
横沥三江《月塘田园》小产权房出售,三房户型总价32.8万起
单价:¥
2900元
横沥体育公园旁《沥城雅苑》中心区带天然气小产权房 生活配套一应俱全 公园环绕 户户1:1停车位
单价:¥
5200元
东莞横沥《六甲新城花园》小产权房 两大栋电梯洋房出售 1:1停车位
单价:¥
3580元起
东莞横沥三江两栋统建楼《华棠苑》70年产权 小区封闭管理 商业学校围绕 首付3成起
单价:¥
3500元
横沥田头小产权房《 松湖阳光壹号》70年产权 中心地段 别墅区0距离 配套齐全
单价:¥
按套卖
东莞横沥贝涌六栋统建楼《松湖-阳光花园》地铁口物业 70年产权交 通配套齐全 停车位充足
单价:¥
4150元
东莞横沥贝涌3栋统建楼《都市家园》公园旁 地铁口物业 发绿本 首付1成
单价:¥
2780元起
东莞横沥石涌两栋小产权房《鸿运公馆》商业中心 户型方正 采光无敌 低总价
单价:¥
5000元
东莞横沥村尾小产权房《翰林雅居》零距离横沥中学 70年产权 大型停车场 0距离村尾公园
单价:¥
按套卖
手机网站
扫一扫加好友
13538226807
13632603771
地址:深圳市
联系人:祝经理
邮箱:3545933949@qq.com
宝安小产权房
石岩小产权房
沙井小产权房
西乡小产权房
福永小产权房
松岗小产权房
固戍小产权房
光明区小产权房
公明小产权房
光明小产权房
龙华区小产权房
龙华小产权房
民治小产权房
大浪小产权房
观澜小产权房
龙岗小产权房
布吉小产权房
坂田小产权房
平湖小产权房
龙城小产权房
横岗小产权房
南联小产权房
坪地小产权房
坪山小产权房
深圳市区小产权房
南山小产权房
福田小产权房
罗湖小产权房
盐田小产权房
东莞小产权房
长安小产权房
大朗小产权房
大岭山小产权房
塘厦小产权房
厚街小产权房
虎门小产权房
凤岗小产权房
黄江小产权房
横沥小产权房
樟木头小产权房
常平小产权房
茶山小产权房
寮步小产权房
东坑小产权房
松山湖小产权房
企石小产权房
南城小产权房
东城小产权房
清溪小产权房
石排小产权房
惠州小产权房
惠城小产权房
大亚湾小产权房
仲恺小产权房
龙门小产权房
惠阳小产权房
博罗小产权房
淡水小产权房
新圩小产权房
惠东小产权房
巽寮湾小产权房
十里银滩小产权房
Copyright @ 2020 www.yxf8.cn All Rights Reserved 粤享房版权所有
手机版
网站地图