






长安4栋大型花园小区盛大开盘
全市绝版耀世呈现【湖畔家园】
…………………………………………
真正?4栋大型小区花园,阳台上看山?看湖海?看公园?(全市绝版楼盘)绝无仅有!
——全市最优质花园小区项目——
……全市最低利息分期付款……
首付五成,分期五年是无条件分期,利息3厘,均价8500元
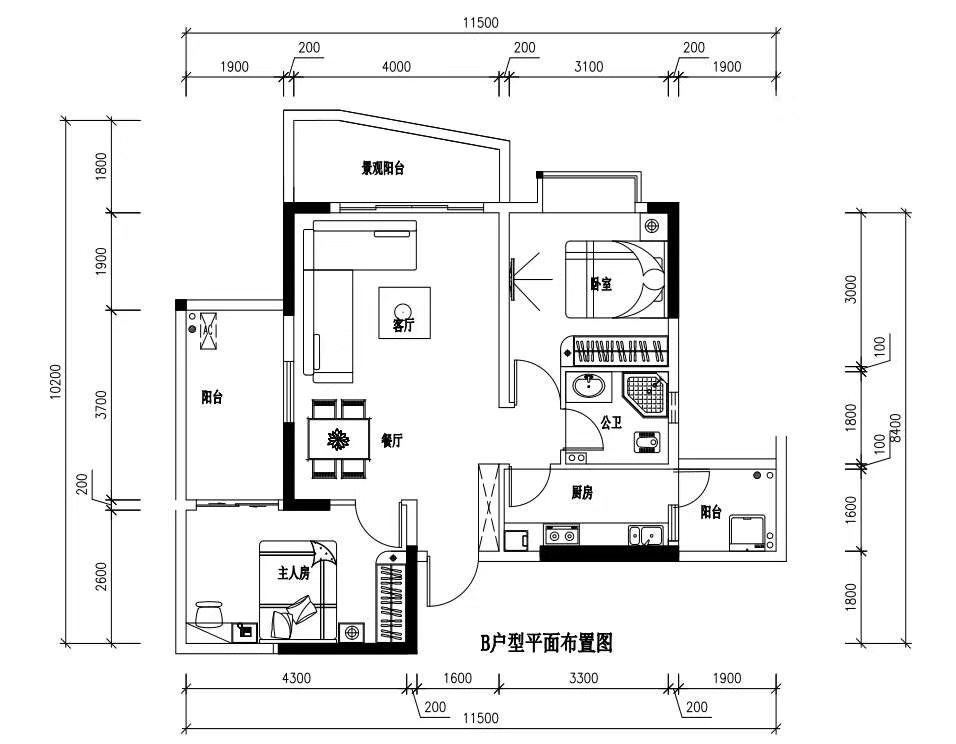
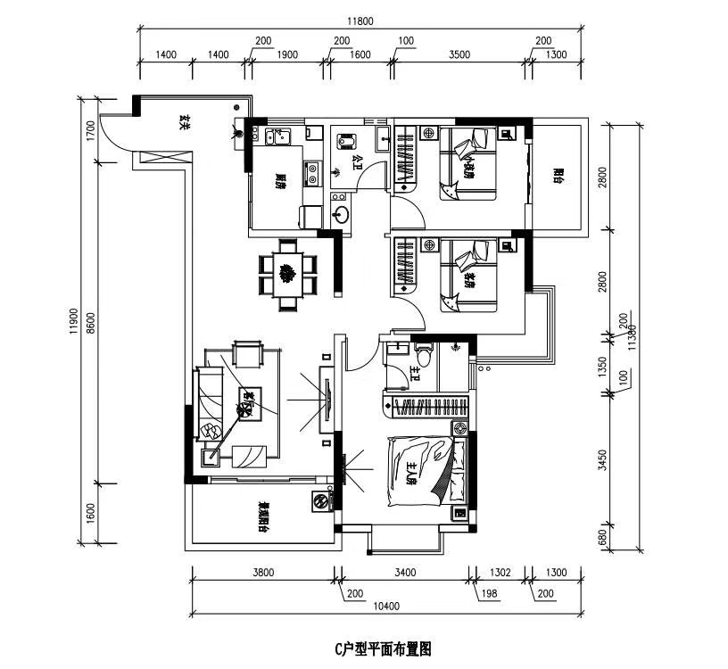
——— 臻品户型3梯8户 ———
两房两厅96平(租金2000起)
大两房两厅101平(租金2600起)
三房两厅132、142平(租金3800起)
毛坯交房,户户大阳台,带飘窗,通风采光无敌
————————————
配套:
马鞍山公园(2万平方)、象山公园、厦边市场、盛世华联超市、夏边幼儿园、大型停车场1:2的停车位
5分钟生活圈:
厦边体育馆、厦边成才第二幼儿园、厦边小学、厦边医院、华大商场、联昇百货、医院、穗莞深轻轨厦边站800米
虎门码头、宝安国际机场四站地、海陆空立体式交通,畅达全城,通达全世界
8000/㎡起轻松置业轻轨口
几大世界级产业集群助推增值
正处政府巨资300亿打造(滨海湾新区新城)腹地,各大视频网搜索:厦边轻轨口深度解读地段投资价值,增值前景?
阳台上看山看湖,看花园!蓝天绿水滨海景观??感受繁华新一线城市中的世外桃源? 商业生活配套成熟齐全,吃住行游乐,怡然一体厦边!错过不再!下楼公交车站,10分钟长安中心!15分钟直达深圳海上田园!
























