












松山湖新楼盘、华为1号、松山湖华为总部基地旁---项目名称【华为一号】
项目概况
占地约9.5万,建筑约21万,容积率1.8
分三期开发
一期商业37栋商业别墅已经运行,胡桃里,莫奈咖啡等知名商家已入驻营业
二期高层5栋30层高层住宅现推产品39-188㎡
三期独栋与高层{正在规划中}
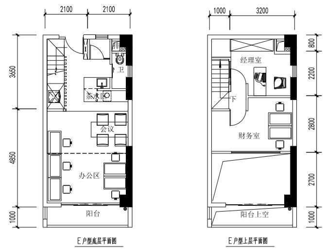
主推户型:
2梯7户,总层高30层
单身公寓39平
一房50-57平
两房80平
三房91-95平
平层均价12000㎡(带精装修,户型灵活多变,可组合)
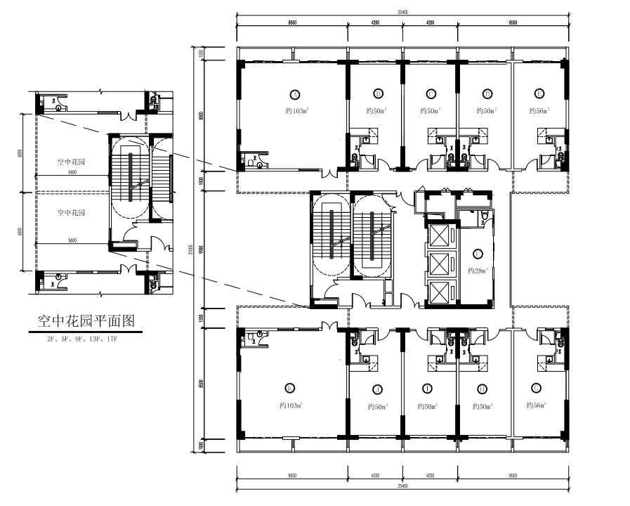
3梯11户,总层高20层
复式两房50-56平
复式大三房103平
复式均价16000/㎡(带精装修,4.5米层高,买一层送一层)
付款方式:首付5成,分期3-8年,利息3-4厘
项目6大卖点
1.地处于松山湖北CBD,离华为总部基地200米的距离,位于项目对面,松山湖产业园将引入40万就业人才,租赁无忧。
2.自身配套成熟,胡桃李等商家已入驻。与万科生活广场仅2公里,与华润万象汇1.5公里
3.地铁口:松山湖北站1.2公里,离高速出入口石大路1.5公里,片区交通便利
4.旁边为黎贝拆迁区,占地约18公项,将打造为商住区,配建一所48班小学,预计将3000-4000教职工及学生。
5. 李嘉城旗下“长和投资”集团,由长江与和记黄埔成立的战略投资机构
6.可坐拥国家级高新区+4A级风景区:松山湖103平方公里,8万平方公里淡水湖,14平方公里生态绿地,六大主题公园:松湖烟雨、中心公园、松湖花海、湿地公园以及金多港高尔夫等,将成为新的可宜居的富人区。
7.园区配套:项目已入驻胡桃里、皖境、炭烤、B1 音乐餐吧、法式餐厅等餐饮配套,还有国际 T 台会馆、 世界前三的意大利马兰戈尼服装学院、设计师公寓、泳池、SPA 会所、健身会馆、咖啡吧等专属配套。























