深圳小产权房
首页
宝安
石岩
沙井
西乡
福永
松岗
固戍
光明区
公明
光明
龙华区
龙华
民治
大浪
观澜
龙岗
布吉
坂田
平湖
龙城
横岗
南联
坪地
坪山
深圳市区
南山
福田
罗湖
盐田
东莞
长安
大朗
大岭山
塘厦
厚街
虎门
凤岗
黄江
横沥
樟木头
常平
茶山
寮步
东坑
松山湖
企石
南城
东城
清溪
石排
惠州
惠城
大亚湾
仲恺
龙门
惠阳
博罗
淡水
新圩
惠东
巽寮湾
十里银滩
沥林
客服电话:13632603771
位置:
粤享房
>
深圳市区小产权房
>
罗湖小产权房
> 罗湖晒布地铁口《馨视界大厦》红本商品房 精装修出售 总价120万起
罗湖晒布地铁口《馨视界大厦》红本商品房 精装修出售 总价120万起
价格:¥
65000元
楼盘名称:
馨视界大厦
楼盘类型:
罗湖红本房
楼盘概况:
公寓和一房
户型面积:
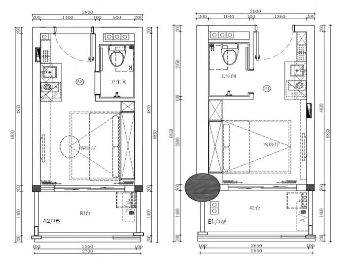
22-23-24-25-29-30平
交房标准:
精装
楼盘地址:
罗湖东门中路
销售电话:
13632603771(刘经理)
13538226807(祝经理)
在线咨询
项目介绍
2020-04-24
流量:1205
罗湖红本房《馨视界大厦》低总价、高租金、地铁口、带装修、关内独立红本房来了!它来了它来了、它带着120万起就能拥有它独立红本的战袍来了!
罗湖关内地铁口零距离的《馨视界大厦》
湖贝万象晒布•三地铁
‼精装现楼
‼商住两用
全市最低门槛,投资回报最高
绝版稀缺户型,升值潜力无限
‼小面积低总价,低门槛入主关内
‼65%阳台配置率
‼地铁群上盖物业
‼不限购 不限贷
‼投资回报高,升值潜力无限
户型:单间和一房(主力面积22、23、24、25、26、29、30㎡)
总价:120万起
产权:50年产权(2017-2067)
均价:65000元起
交房:2021年4月30日
首付5成分期10年
(首付可首期5万起,首付7天内交5%,1个月内10%,3个月内交清,期间无利息)
在线留言
意向区域:
意向楼盘:
预算总价:
姓名:
电话:
热门推荐
深圳平湖16栋花园统建楼《鹿湖花园》集体大红本 精装交房 户户带阳台 地下停车场
龙岗豪宅《半山名著》12栋大型花园社区统建楼,可以落户,积分入学,70年产权
西乡西湾红树林公园《滨海时代广场》唯一带花园社区海景房 双地铁口物业
长安厦边《滨海明珠花园》3栋统建楼 通燃气湖景房 带地下停车场
大朗6栋大型统建楼《东方明珠》松山湖花园小区房 使用率90% 智能化物业管理 1 :1停车位
塘厦碧桂园天麓山旁《香蜜国际》5栋大型花园统建楼 带天燃气和停车场 分期8年
观澜新田三栋小产权房《名城世家》公园旁 观澜湖站 可落户 可申请公立学校
松山湖大朗华为旁《中心花园》5栋花园小区 自带商业和停车场
深圳石岩集体大红本大型统建楼《山水悦城》地铁口物业 南山后花园 带天燃气和地下停车场 超高绿化率
东莞大朗6栋大型村委花园统建楼《银领国际》带停车场和天燃气,村委过户发绿本
罗湖小产权房
罗湖黄贝岭地铁口100米新盘《罗湖中心城》原始户型采光好 拎包入住 总价69.8万起
单价:¥
按套卖
罗湖大望梧桐山脚下《梧桐雅苑》小产权房,通燃气 可以落户 民水电 两证一书+历史遗留
单价:¥
按套卖
罗湖口岸 万象城 国贸商圈核心地段 [万象新天地]集体大红本 通燃气 双层地下停车场
单价:¥
2.1万元
罗湖笋岗稀缺小产权房《笋岗壹号》双地铁9号7号线 毗邻罗湖顶级学府 永久性产权
单价:¥
按套卖
罗湖军产房《华讯国际》金融中心 地王大厦旁 双地铁口 五大商圈 精装现房
单价:¥
3.6万元
梧桐相伴 仙湖为邻 深圳市区罗湖[仙湖雅居]小产权房 地铁口山景房 永久性产权
单价:¥
按套卖
央企华润旧改拆迁房 罗湖黄贝岭《翠园学府》市区双地铁口 原始户型永久性产权
单价:¥
按套卖
深圳罗湖黄贝岭上村小产权房《黄贝岭华府》拆迁房 全部原始户型永久产权 拆迁即赔红本商品房
单价:¥
按套卖
深圳罗湖大望村《望湖茗苑》精装修带电梯的小产权房 带家私出售 首付19.4万起
单价:¥
12000元
深圳罗湖大望村《望桐公馆》村委盖章的小产权房 两房99万起 梧桐山下天然氧吧
单价:¥
按套卖
深圳罗湖核心区独立红本房《伯克丽》地王大厦旁 小面积 低总价 高收益 带精妆 可托管
单价:¥
7万元
深圳罗湖小产权房《望桐豪苑》依山傍水学位房 永久产权 拆迁即赔红本商品房
单价:¥
按套卖
深圳罗湖红本商品房《罗湖公寓》产权70年 紧邻洪湖站 接3号线晒布
单价:¥
4万起
罗湖大望小产权房《东湖名郡》村委盖章,通天燃气,精装两房和三房出售
单价:¥
12800元起
罗湖老街红本商品房《云境尚邸》4条地铁线环绕,豪华装修,总价2字头
单价:¥
5.5万起
罗湖晒布地铁口《馨视界大厦》红本商品房 精装修出售 总价120万起
单价:¥
65000元
罗湖东门晒布地铁口《东门壹号》精装小产权房出售 总价57.8万起 开发商反租
单价:¥
按套卖
深圳罗湖小产权房泥岗地铁口《湖畔山庄》11栋大型花园统建楼 有停车场和天燃气
单价:¥
38000元
深圳罗湖军产房《罗湖大厦》 部队签合同盖章 地铁口物业买一层送一层38000元每平起
单价:¥
38000元
深圳罗湖《罗湖上寓》红本商品房公寓 70年产权 93.8万起
单价:¥
58000元
手机网站
扫一扫加好友
13538226807
13632603771
地址:深圳市
联系人:祝经理
邮箱:3545933949@qq.com
宝安小产权房
石岩小产权房
沙井小产权房
西乡小产权房
福永小产权房
松岗小产权房
固戍小产权房
光明区小产权房
公明小产权房
光明小产权房
龙华区小产权房
龙华小产权房
民治小产权房
大浪小产权房
观澜小产权房
龙岗小产权房
布吉小产权房
坂田小产权房
平湖小产权房
龙城小产权房
横岗小产权房
南联小产权房
坪地小产权房
坪山小产权房
深圳市区小产权房
南山小产权房
福田小产权房
罗湖小产权房
盐田小产权房
东莞小产权房
长安小产权房
大朗小产权房
大岭山小产权房
塘厦小产权房
厚街小产权房
虎门小产权房
凤岗小产权房
黄江小产权房
横沥小产权房
樟木头小产权房
常平小产权房
茶山小产权房
寮步小产权房
东坑小产权房
松山湖小产权房
企石小产权房
南城小产权房
东城小产权房
清溪小产权房
石排小产权房
惠州小产权房
惠城小产权房
大亚湾小产权房
仲恺小产权房
龙门小产权房
惠阳小产权房
博罗小产权房
淡水小产权房
新圩小产权房
惠东小产权房
巽寮湾小产权房
十里银滩小产权房
Copyright @ 2020 www.yxf8.cn All Rights Reserved 粤享房版权所有
手机版
网站地图