

















东莞凤岗雁田8栋花园小区房《深创学苑》集体大红本,超500套优质房源,2万㎡社区商业,小区内自带2所公里学校(高端幼儿园+九年制学校)
在施工的深惠城际开通,地铁3站深圳北,5站前海,带来更交通的便利。
3.6万㎡开放式block商业街区,包含办公总部,写字楼,新型厂房,汇聚 30万产业人口集聚,带来超高的人流红利。
5梯8户,精装交楼,户户带阳台,通燃气。车位比:1:1:4
在售面积:
单间:33-36㎡
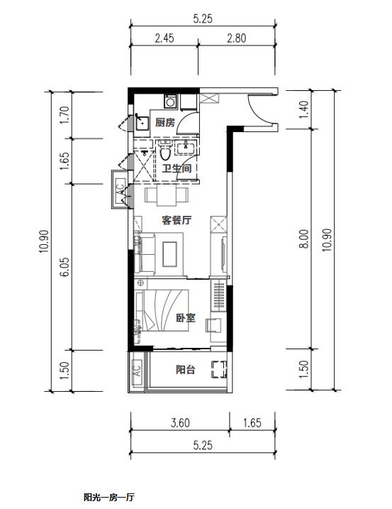
一房一厅:49㎡
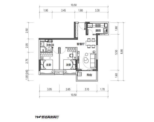
两房:79㎡
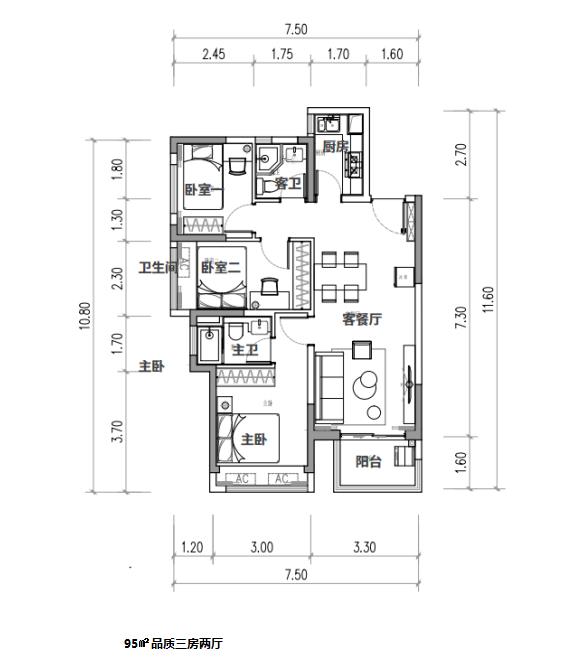
三房:95-103㎡
四房:126㎡
均价:13500/平买精装学区房
付款方式:
首付3成,贷款10年
水:3.42元 电:0.68元 管理费2.5元
【投资买房,六大锦囊】
一、投资买房,核心地段是首选,深莞融合第一站,深圳里的凤岗凭借比深圳更近深圳核心区的0深核心区位,区域价值一路看涨,未来必将成为下个“小南山”。
二、投资买房,交通配套是关键3地铁+1城轨,3站深圳北,5站到前海30分钟通达深圳核心区,40分钟直达深莞惠距深惠城轨凤岗站1km,周边环绕深圳地铁10号线东延线油甘埔站、10号线双拥街站,3号线大运站,项目出口即为博深高速凤岗出入口,更有水官、南坪、丹平等主干道环绕左右,无缝贯连深圳。
三、投资买房,产业加持是增量500万方产业新城30万产业人口集聚,区域价值增长无限社区所在片区集聚天安、京东、康佳等重大产业项目,吸引超5000家优质企业入驻集聚数十万产业人口,片区价值增长潜力无限。
四、投资买房,社区配套很重要醇熟生活配套,近享繁华生活社区自带超2万㎡商业配套,规划引入品牌影院、连锁超市、特色餐饮、生活配套及教育培训机构等。自带3.5万方园林景观,坐拥鹰咀山森林公园(规划中)、山林步道(规划中),感受在公园里生活。
五、投资买房,自带学校很方便名校就在家门口,上班放学更省心社区自带高端幼儿园+九年制教育学校,家长可节省上下班接送时间,再也无需担心孩子上下学安全问题。
六、投资买房,精装交付够省心户户带阳台,通燃气,品质精装交付超宽楼间距,视野开阔,畅享一线景观资源3米高阔居住空间,三梯五户、五梯八户,超高梯户比



































