深圳小产权房
首页
宝安
石岩
沙井
西乡
福永
松岗
固戍
光明区
公明
光明
龙华区
龙华
民治
大浪
观澜
龙岗
布吉
坂田
平湖
龙城
横岗
南联
坪地
坪山
深圳市区
南山
福田
罗湖
盐田
东莞
长安
大朗
大岭山
塘厦
厚街
虎门
凤岗
黄江
横沥
樟木头
常平
茶山
寮步
东坑
松山湖
企石
南城
东城
清溪
石排
惠州
惠城
大亚湾
仲恺
龙门
惠阳
博罗
淡水
新圩
惠东
巽寮湾
十里银滩
沥林
客服电话:13632603771
位置:
粤享房
>
东莞小产权房
>
凤岗小产权房
> 东莞凤岗官井头《富豪花园》小产权房 均价7300元
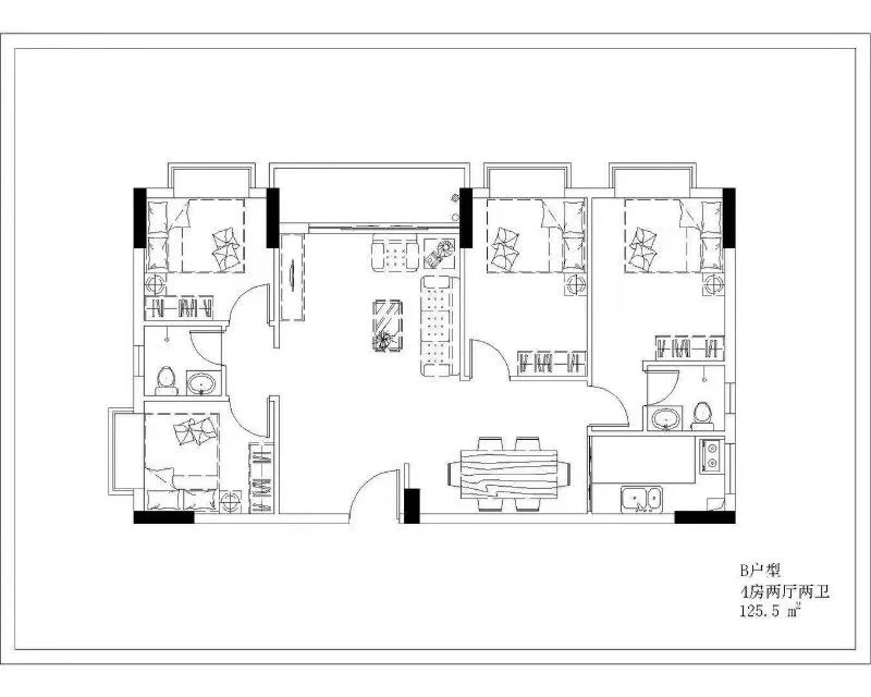
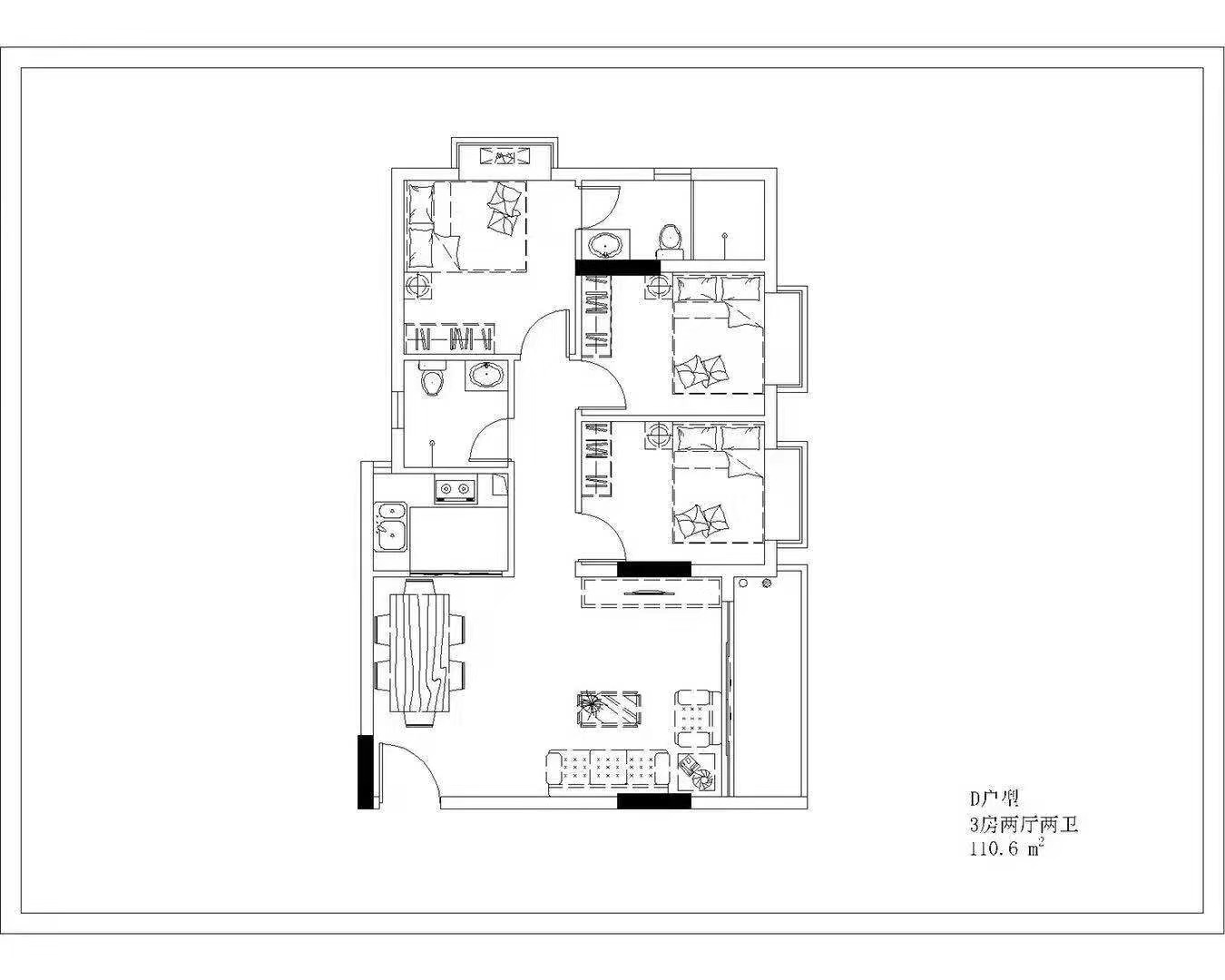
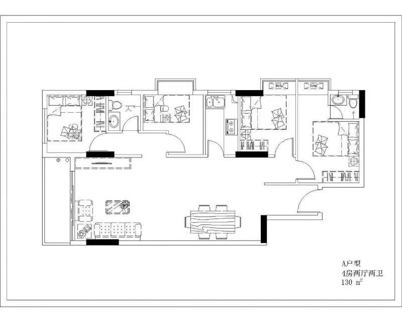
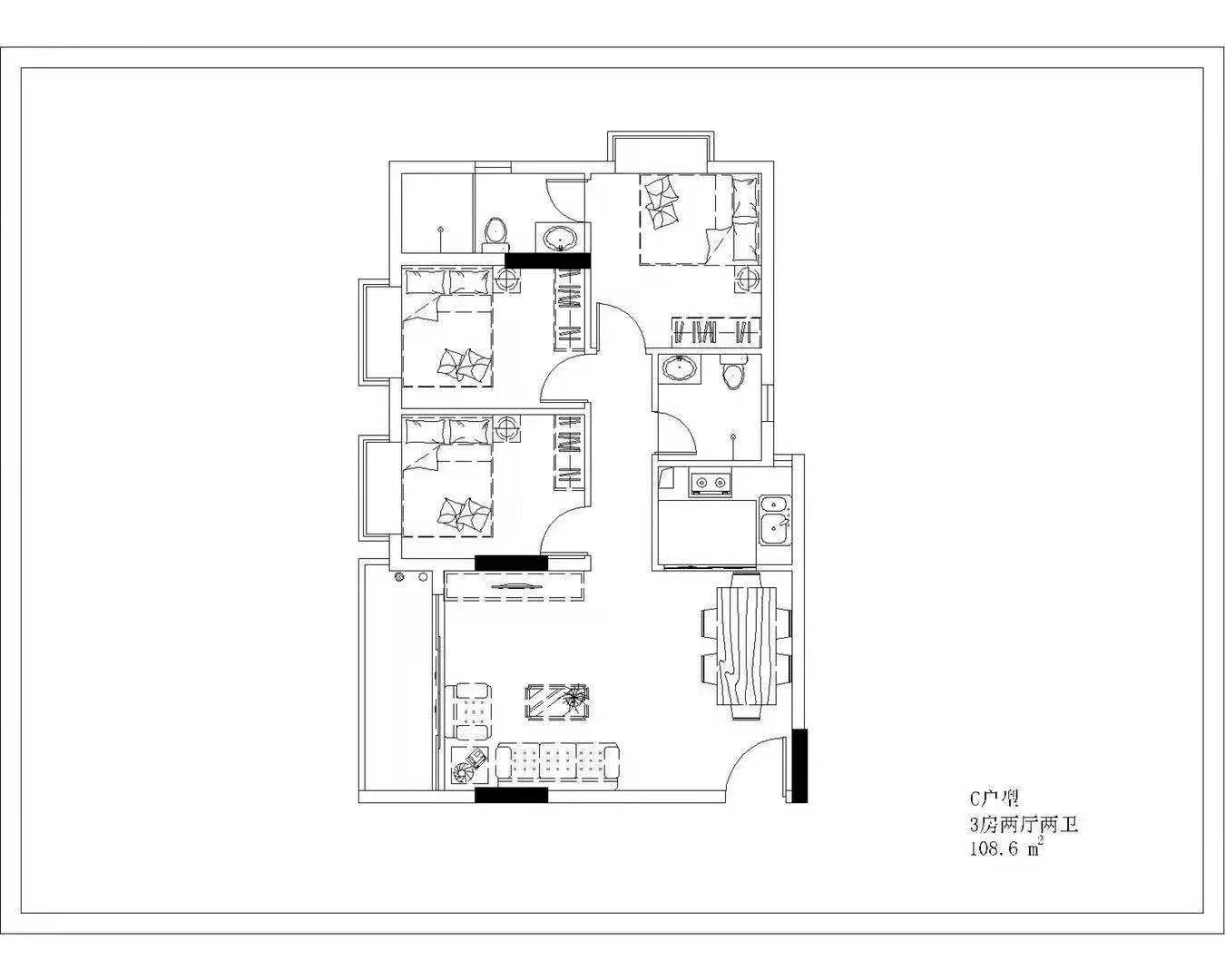
东莞凤岗官井头《富豪花园》小产权房 均价7300元
价格:¥
7300元
楼盘名称:
富豪花园
楼盘类型:
东莞凤岗小产权房
楼盘概况:
三房 四房
户型面积:
99-130平
交房标准:
毛坯
楼盘地址:
官井头街心花园旁
销售电话:
13632603771(刘经理)
13538226807(祝经理)
在线咨询
项目介绍
2019-03-16
流量:964
凤岗新盘【富豪花园】首付5成分期三年均价7300元
精工样板房 耀世绽放
建筑面积99-130㎡【三房至四房】两梯5户阔绰豪宅 为你而来
交通优势
项目交通便利,项目南侧还将修建一条连通龙岗中心城的龙平南路,形成项目与深圳的无缝对接;未来规划地铁12号线、16号线站点也近在咫尺。这些设施建成后将大大提升片区价值。
教育配套
中小学官井头学校、东北师大附属益田小学、清英学校、东莞市南门学校、油甘埔学校、新世纪英才学校、华侨中学;
商业配套
综合商场嘉辉生活超市、嘉辉商业街、益田假日天地、cocopark商场;
医疗配套
龙岗中医院、龙岗人民医院、妇幼保健院、南方医科大学广济医院、华侨医院、凤岗华桥医院油甘埔分院,油甘埔社区卫生站,凤岗华侨医院官井头分院;
银行配套
商业银行、农业银行、工商银行、建设银行、中国银行、邮政官井头邮局;
休闲娱乐
国家4A级旅游景区龙凤山庄、南门山森林公园、大运公园、龙城公园
直到公交站:9路公交车——【银井路口】【官井头水库工业区】2路公交车——【毅力天桥】M361路——【官井头】
在线留言
意向区域:
意向楼盘:
预算总价:
姓名:
电话:
热门推荐
深圳平湖16栋花园统建楼《鹿湖花园》集体大红本 精装交房 户户带阳台 地下停车场
龙岗豪宅《半山名著》12栋大型花园社区统建楼,可以落户,积分入学,70年产权
西乡西湾红树林公园《滨海时代广场》唯一带花园社区海景房 双地铁口物业
长安厦边《滨海明珠花园》3栋统建楼 通燃气湖景房 带地下停车场
大朗6栋大型统建楼《东方明珠》松山湖花园小区房 使用率90% 智能化物业管理 1 :1停车位
塘厦碧桂园天麓山旁《香蜜国际》5栋大型花园统建楼 带天燃气和停车场 分期8年
观澜新田三栋小产权房《名城世家》公园旁 观澜湖站 可落户 可申请公立学校
松山湖大朗华为旁《中心花园》5栋花园小区 自带商业和停车场
深圳石岩集体大红本大型统建楼《山水悦城》地铁口物业 南山后花园 带天燃气和地下停车场 超高绿化率
东莞大朗6栋大型村委花园统建楼《银领国际》带停车场和天燃气,村委过户发绿本
凤岗小产权房
东莞凤岗凤凰围2栋统建楼《金凤花园》自带空中花园 通天燃气 带飘窗 双阳台 带地面三层停车场
单价:¥
5980元
龙岗北3栋 凤岗官井头《龙庭家园》5分钟到深圳龙岗 商业环绕采光一流 交通便利
单价:¥
按套卖
凤岗五联石头岭《澜湖大厦》小产权房 观澜 平湖0距离 精装现房 户型方正
单价:¥
6000元
观澜牛湖旁 凤岗两栋竹尾《牛湖公馆》统建楼 配套完善 交通便利 户型方正 采光通风
单价:¥
4688元
东莞凤岗7栋花园房《卧龙云府》集体红本 户户带阳台 通燃气 精装交楼 带地下库
单价:¥
9300元
凤岗浸校塘三栋统建楼《凤城豪庭》精装电梯洋房 成熟商业街 交通便利配套齐全
单价:¥
按套卖
临深 凤岗田心围小产权房《依山雅居》独门独院式管理 1:1停车位 户型方正 南北通透
单价:¥
按套卖
深圳北10栋花园房 凤岗《阳光半岛》集体红本 通燃气 独立外阳台 车位充足配智能充电桩
单价:¥
1.2万元
凤岗塘沥小产权房《凤雅苑》十分钟到龙岗五分钟上高速 5大公园环绕 户型方正南北通透
单价:¥
5000元
东莞凤岗沃尔玛中心区2大栋统建楼《卧龙公馆》民水民电 精装交房 拎包入住 成熟商圈
单价:¥
按套卖
凤岗8栋花园小区房《深创学苑》集体大红本通燃气 精装学区房 深惠城际开通 地铁3站深圳北,5站前海
单价:¥
1.35万元
深圳外环高速旁 凤岗永盛北路2大栋[港湾新城]沃尔玛旁统建房 专用停车场
单价:¥
5900元起
2022年最新凤岗雁田集体大红本《天鹅湖畔花园》三面临深 天然氧吧 10分钟到龙岗大运 带购物中心
单价:¥
13000元
凤岗竹塘围合式小产权房《永盛豪庭》临深 坐享繁华 交通便利 生活配套成熟教育配套齐全
单价:¥
6888元起
凤岗中心竹尾田小产权房《聚豪雅苑》户型方正,采光通风 商业广场配套齐全 交通便利
单价:¥
5888元起
凤岗雁田5栋花园统建楼《凤深绿谷》零距离龙岗中心城 通燃气 地下停车场 精装拎包入住
单价:¥
1.19万元
凤岗体育馆旁5栋花园统建楼《凤岗花园》中心地段 燃气到户,两层地下停车场
单价:¥
9800元起
东莞凤岗官井头《观景壹号》临深小产权房 户户朝南 采光一流 使用率高 商业环绕 停车方便
单价:¥
6388元
东莞凤岗竹塘10栋花园统建楼《未来城》精装集体大红本 通天然气,带地下停车场 首付3成
单价:¥
1.15万元起
东莞凤岗中心统建楼《凤雅阁》70年产权 带1:1停车场 实用率高达90%
单价:¥
9000元
手机网站
扫一扫加好友
13538226807
13632603771
地址:深圳市
联系人:祝经理
邮箱:3545933949@qq.com
宝安小产权房
石岩小产权房
沙井小产权房
西乡小产权房
福永小产权房
松岗小产权房
固戍小产权房
光明区小产权房
公明小产权房
光明小产权房
龙华区小产权房
龙华小产权房
民治小产权房
大浪小产权房
观澜小产权房
龙岗小产权房
布吉小产权房
坂田小产权房
平湖小产权房
龙城小产权房
横岗小产权房
南联小产权房
坪地小产权房
坪山小产权房
深圳市区小产权房
南山小产权房
福田小产权房
罗湖小产权房
盐田小产权房
东莞小产权房
长安小产权房
大朗小产权房
大岭山小产权房
塘厦小产权房
厚街小产权房
虎门小产权房
凤岗小产权房
黄江小产权房
横沥小产权房
樟木头小产权房
常平小产权房
茶山小产权房
寮步小产权房
东坑小产权房
松山湖小产权房
企石小产权房
南城小产权房
东城小产权房
清溪小产权房
石排小产权房
惠州小产权房
惠城小产权房
大亚湾小产权房
仲恺小产权房
龙门小产权房
惠阳小产权房
博罗小产权房
淡水小产权房
新圩小产权房
惠东小产权房
巽寮湾小产权房
十里银滩小产权房
Copyright @ 2020 www.yxf8.cn All Rights Reserved 粤享房版权所有
手机版
网站地图